500 Erbsville Rd (30T-25402) and 515 Erbsville Rd (Z-25-29 and 30T-25403)

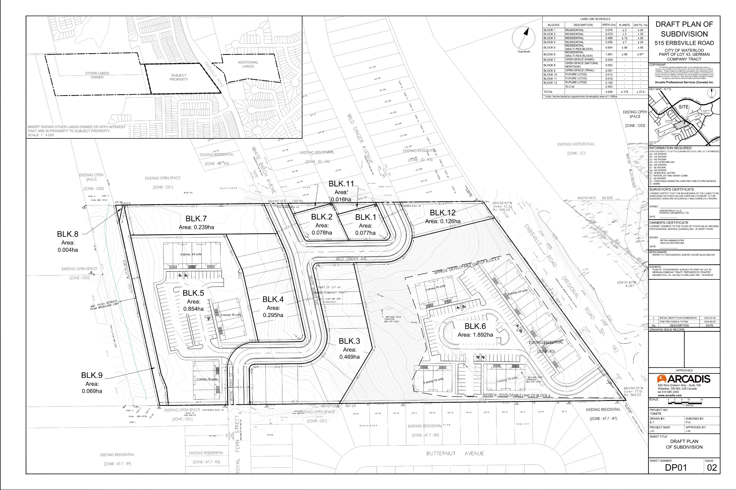
Plan of Subdivision - 515 Erbsville Rd

An image of a plan of subdivision with blocks for residential uses, parkland, trail, and new roads

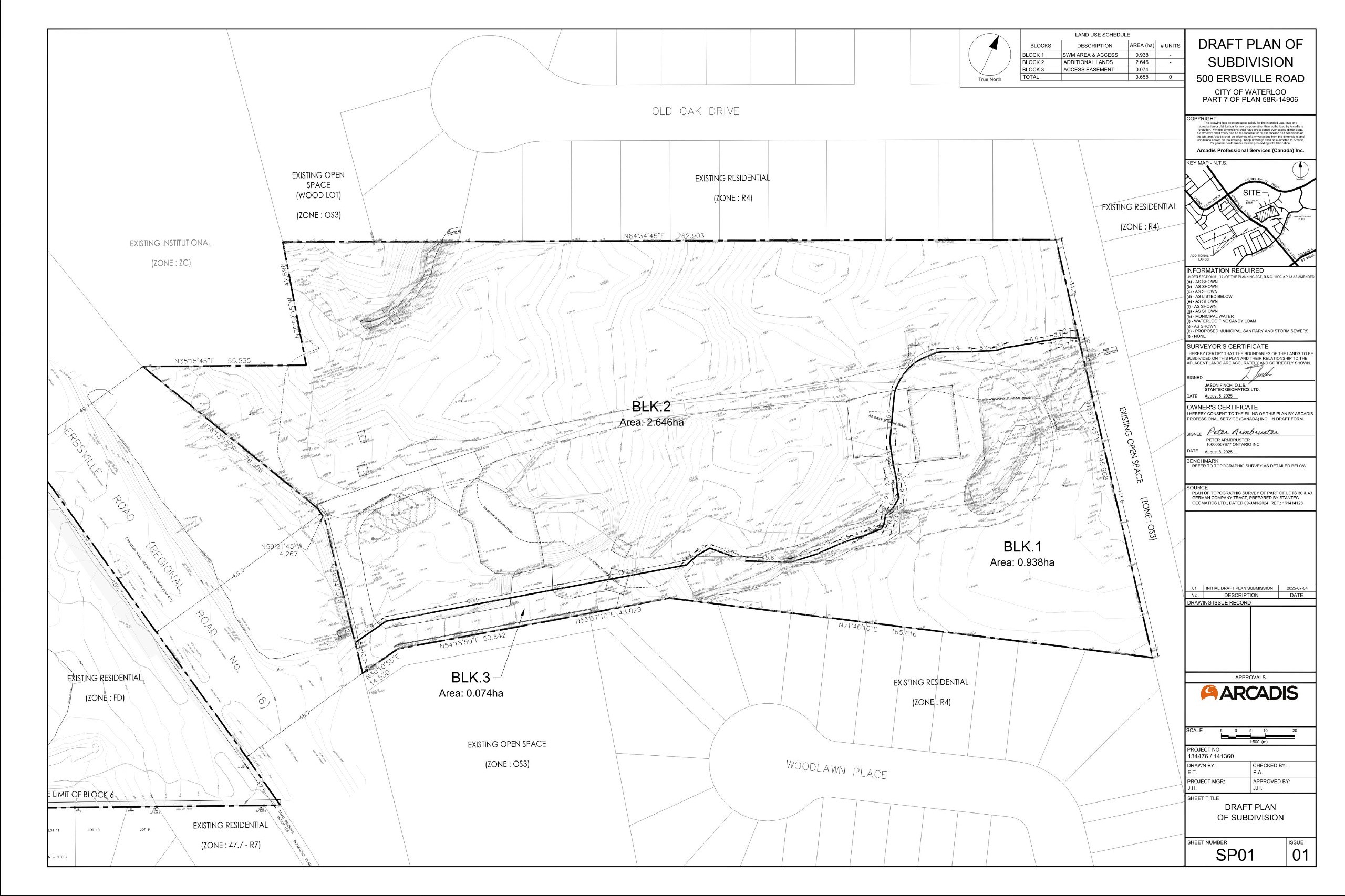
Plan of Subdivision - 500 Erbsville Rd

An image of a plan of subdivision with a stormwater management block, an existing residential block and an access block

Changes to the Zoning Bylaw for this location are required before a permit can be issued. This means that they submit an application that is reviewed by city planners and other agencies plus city council before anything can be built.

The applicant is proposing to create a new residential subdivision at 515 Erbsville Rd with a total of approximately 175 new dwellings in a combination of detached dwellings and multi-unit residential (stacked townhouses). The subdivision also proposes parkland, trail and new public streets to connect to the existing neighbourhoods adjacent to the property. A Zoning By-law Amendment application is also proposed to rezone the lands to facilitate plan of subdivision 30T-25403.

Zoning bylaw changes requested include rezoning the lands at 515 Erbsville Rd to:

  • Residential Five (R5) - permits detached buildings and freehold semi-detached buildings
  • Residential Nine (R9) - permits apartments and various types of townhouses. Request to add 'Multi-unit residential building' as a permitted use. Add site specific regulations:
    • Block 5 & 6 - apply the regulations for apartments to multi-unit residential buildings as well.
    • Block 5 - rear yard setback of 6.0m and low rise residential lot line setback of 6.0m
  • Parks and Recreation (OS1) - for the proposed parkland and trail
  • Conservation (OS3) - for the small block that is part of the environmentally sensitive lands.

An associated plan of subdivision is proposed at 500 Erbsville Rd which will include a new stormwater management block to support the development at 515 Erbsville Rd, as well as a block for the existing residential dwelling to be maintained and an access block leading to the stormwater management block with an easement for access to the existing residential dwelling. No changes to the zoning of 500 Erbsville Rd are proposed at this time.

View the documents submitted by the development company under supporting documents on this page for more details and drawings.

Number of units: approx. 175

Housing types: detached buildings and multi-unit residential buildings

You can provide feedback to the planning department, and it will be shared with the council, or ask a question to learn more about this application.

Images are provided by the applicant and may not reflect the final design approved by the planning division.


Give feedback

Ask a question, read answers

Questions and answers will be published on this site for public viewing. If your username includes your first or last name, or your email address, these will be available for public viewing. Do not include personal or identifying information in your question; if your question is of a personal nature, consider contacting a member of the project team directly. For more information, please refer to our privacy policy.

Questions will be answered by a member of the Planning department within two business days. Some questions may require more time but they will be answered as soon as the information for the response can be collected.

Provide a short summary of your question.

You have 150 characters left

Provide detailed information relating to your question.

You have 500 characters left

Select a respondent from the list that you would most like to answer your question.

Moderation Policy

These are the people that are listening and responding to your questions.

The Project Team

Development Planning Division

{{ question.username }} asked

{{question.description}}

{{ answer.respondent.name }}
| Edited

Answer this question

Select the respondent who will be marked as answering the question

Provide the answer to the question. Answer can be saved as draft and published when complete.

No questions found