Skip to main content

Proposed Development

The application for the subject property has been approved.

The Township of Wilmot is in receipt of an application for an amendment to the Township Zoning By-law. The lands to which the application applies are designated Settlement Core in the Township Official Plan and are zoned Zone 10 (Industrial) within the Township Zoning By-law 83-38, as amended.

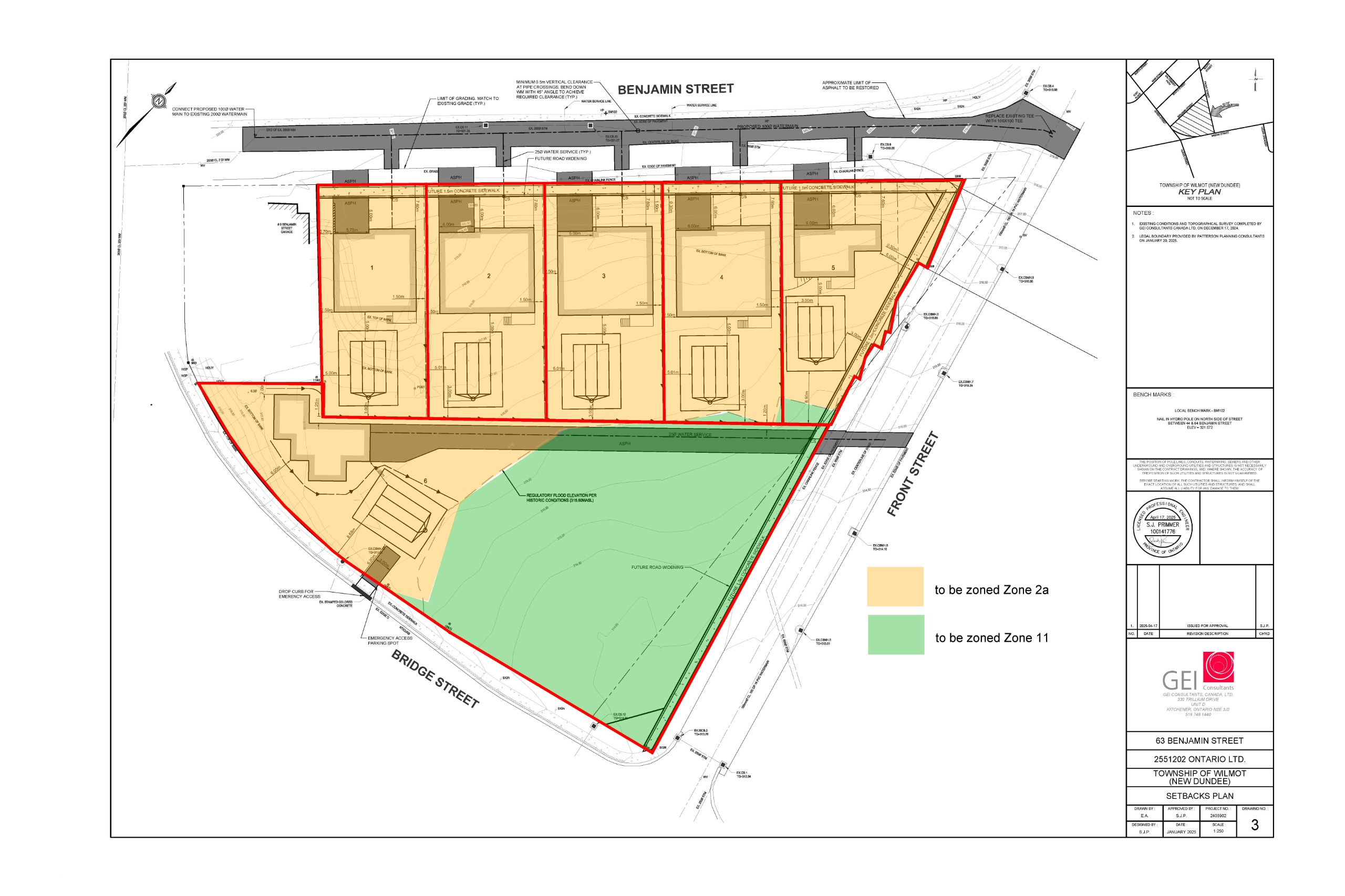
The lands were previously home to the New Dundee Creamery which stopped operating in 1998 with all buildings demolished in 2005. The now vacant property consists of six separately conveyable properties. The application proposes to change the zoning to Zone 2a (Residential) to allow development of the lots with single detached dwellings as opposed to industrial uses presently permitted on the property. Site specific regulations are proposed to recognize the existing lot configurations, to increase the setback to a garage to ensure adequate driveway space should a sidewalk be installed in the future, and to increase one side yard setback to provide adequate space to access the rear yard for septic system maintenance. Lands below the regulatory flood elevation are proposed to be zoned Zone 11 (Open Space).

Concept Plan

Applicant

Consultant: Patterson Planning Consultants Inc.

Owner: 2551202 Ontario Limited


Supporting Materials

Council Meetings

Meeting to Consider Recommendation

November 24, 2025 at 7:00pm


Public Meeting

The Public Meeting to consider this application was held on Monday June 23, 2025 at 7:00pm.

How to Speak at a Council Meeting

To participate virtually and/or share a presentation, you must register in advance.

If you can't attend the meeting in person and/or are concerned about technical difficulties, please ensure that you submit comments under the 'Give your feedback' tab in advance of the meeting to ensure your voice is heard.

Interested Parties

If you wish to be notified of the decision of the Township of Wilmot on the proposed amendment, you must make a written request to the Township of Wilmot: 60 Snyder’s Road West, Baden ON, N3A 1A1 or to planning@wilmot.ca.

Give your feedback

FAQ

Frequently Asked Questions

This information is available in accessible formats upon request.

In accordance with Sections 34(19) of the Planning Act, an appeal may only be filed by the applicant, the registered owner, Minister of Municipal Affairs and Housing, or a specified person or public body that has interest in the matter.

As of June 6, 2024, Provincial Bill 185 removed third party appeal rights, with limited exception (provided they made submissions to council before the decision is made). Appeals to development approvals can no longer be filed by neighbours, individuals, companies, and community associations.

Landowners will continue to have the right to file appeals of Planning Act decisions that affect land they own.

Be advised that comments received become part of the public record and may be posted on the Township’s official website.

Only personal information as defined by the Municipal Freedom of Information and Protection of Privacy Act (MFIPPA) will be redacted from your written submission.