News

Response to Community Engagement feedback

22 February 2022

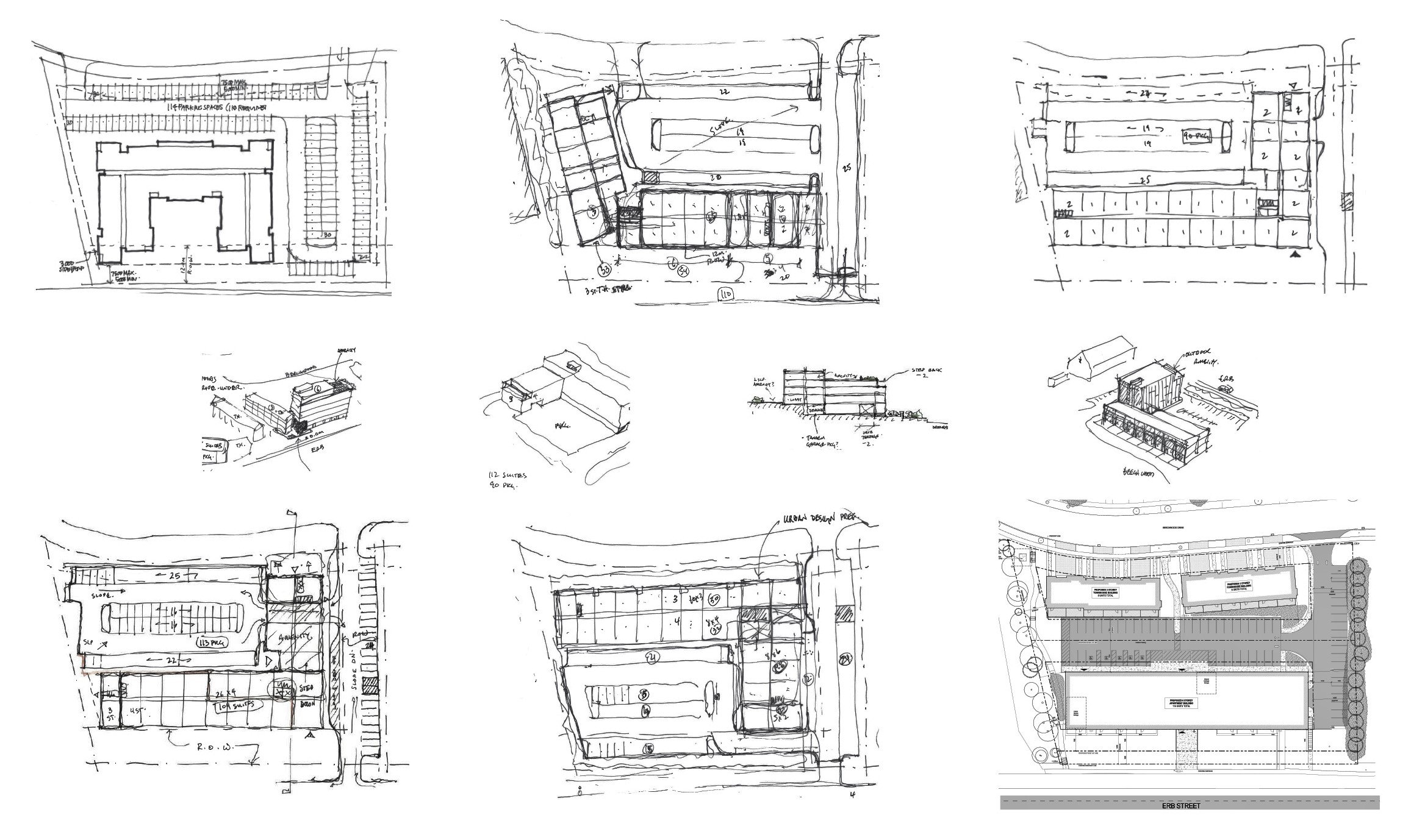
Late last summer (August 2021) the developer for the 555 Beechwood site, Southside Management Group, held two virtual community engagement sessions. Following these, a survey was posted on Engage to allow for more feedback on the design of the site. During these winter months Southside Group has been working with their architectural and engineering consultants on a site plan application to have the plan for 555 Beechwood approved by City of Waterloo staff. Southside Group and their consultants have considered all of the comments and survey responses received and have provided their responses. If you have any questions – please feel free to contact us through the Beechwood phone line (519-575-4400 x3442) or the Beechwood email (Beechwood@regionofwaterloo.ca). We will pass on your questions to Southside.