Skip to main content

Approved Development

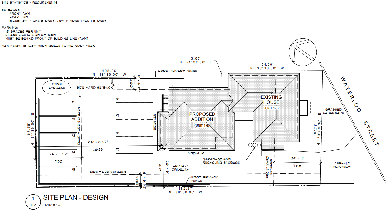
This property has been approved for a six unit residential building.

Concept Plan

Applicant

Deb, Jeff & Justin Carrafiello


Supporting Materials

Reach out to Planning Staff to request supporting materials.

FAQ

Frequently Asked Questions

This information is available in accessible formats upon request

In accordance with Sections 34(19) of the Planning Act, an appeal may only be filed by the applicant, the registered owner, Minister of Municipal Affairs and Housing, or a specified person or public body that has interest in the matter.

As of June 6, 2024, Provincial Bill 185 removed third party appeal rights, with limited exception (provided they made submissions to council before the decision is made). Appeals to development approvals can no longer be filed by neighbours, individuals, companies, and community associations.

Landowners will continue to have the right to file appeals of Planning Act decisions that affect land they own.

Be advised that comments received become part of the public record and may be posted on the Township’s official website.

Only personal information as defined by the Municipal Freedom of Information and Protection of Privacy Act (MFIPPA) will be redacted from your written submission.