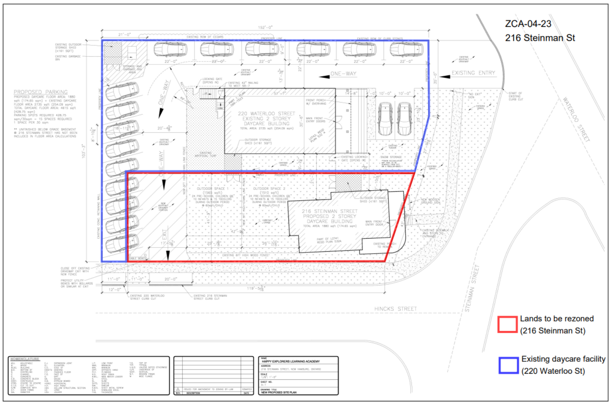
This application proposes to rezone the subject property from Zone 3 (Residential) to Zone 12 (Institutional) to facilitate the conversion of the existing dwelling and property to a day care facility along with associated parking and amenity areas as illustrated on conceptual site plan provided on the Notice of Public Meeting. The facility would be associated with the existing day care located on the abutting property at 220 Waterloo Street.