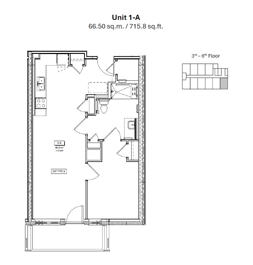
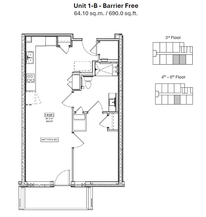
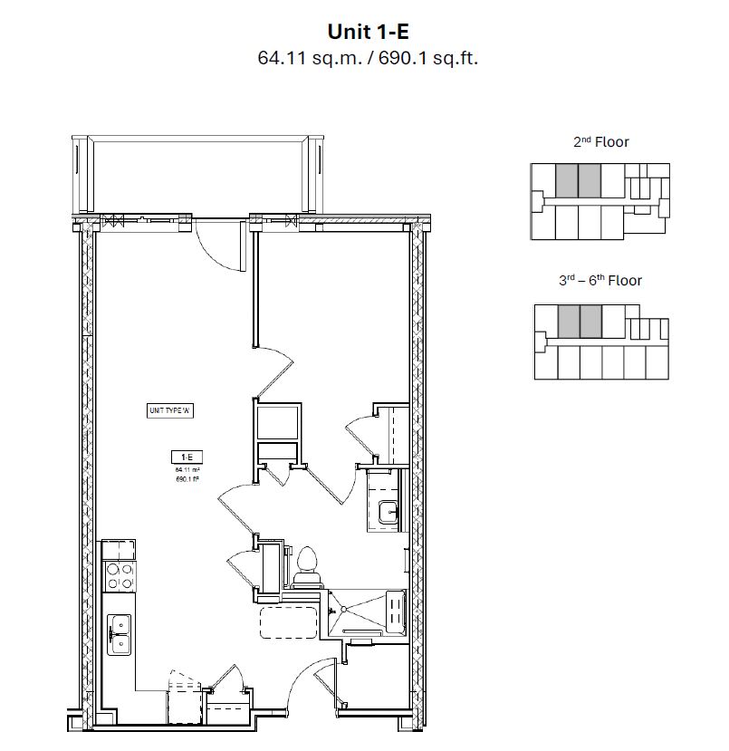
82 Wilson Ave Rental Units

82 Wilson Avenue, Kitchener is a 48-unit seniors' residential building owned and operated by Waterloo Region Housing, a division of the Region of Waterloo. 82 Wilson Avenue is a mixed-income building with 16 units being rented at median market rents. This page provides information on the application process for median market rent units at this building.

This is the first of six projects under the WRH Revitalization Plan to offer rental units at median market rent rates. There is an ongoing need for a variety of affordable housing options in the Region. A goal of the WRH Revitalization Plan is to respond to this need through the redevelopment of existing sites owned by the Region.

82 Wilson Rental Unit Applications

The Pre-Application Questionnaire for Median Market Rent (MMR) Units is now closed.